Contactez-nous
Les champs indiqués par un astérisque (*) sont obligatoires
Publié le : 20/01/2023
Mis à jour le : 19/02/2026
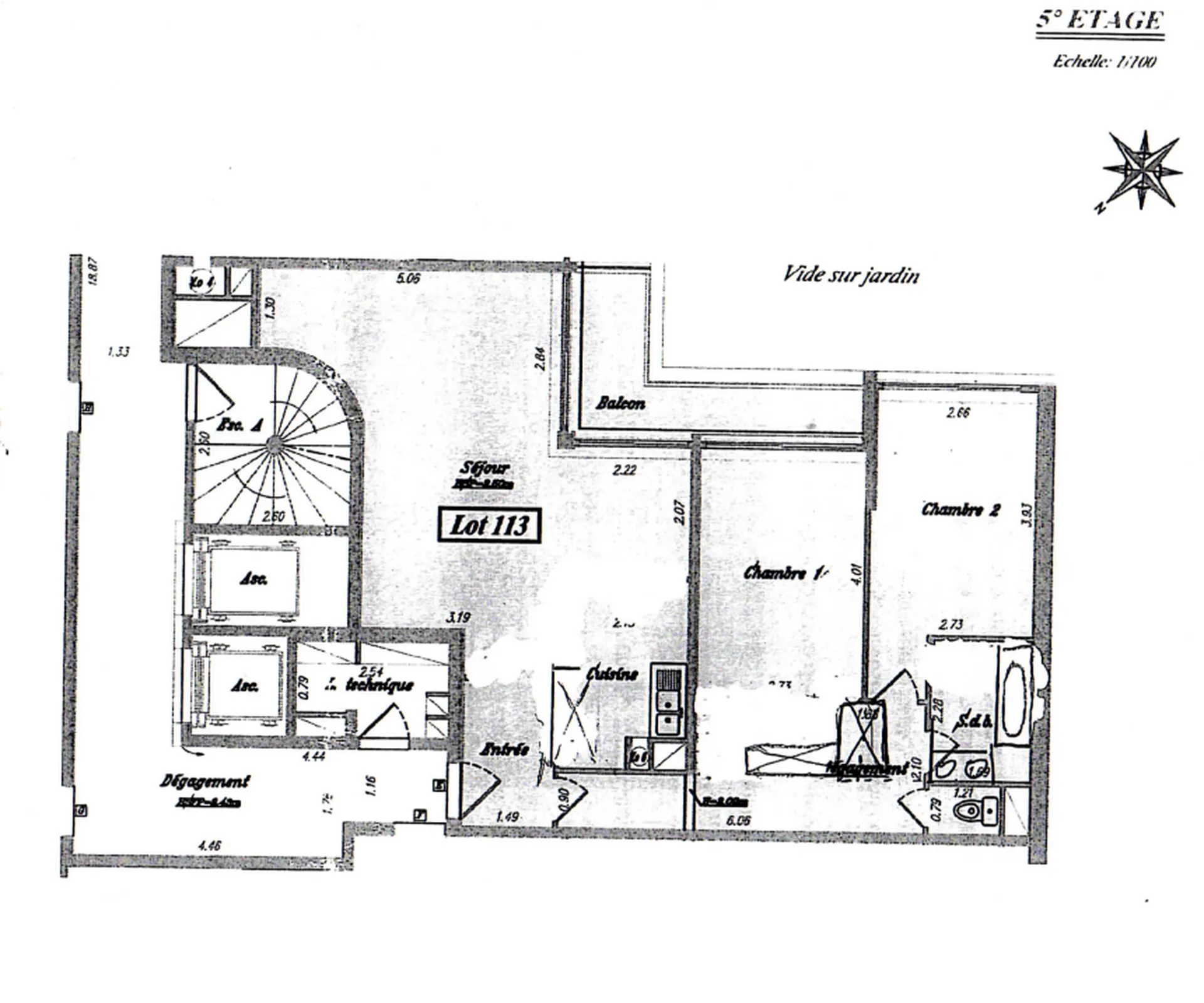
Les Loges Immobilier vous proposent à la vente ce ravissant 3 Pièces de 74m², au 5ème étage d'un récent immeuble, bien tenu, dans le quartier Château / Soyer.
Vous ne serez que séduits par son très agréable balcon, exposition Plein Sud, donnant sur un beau jardin. A proximité des commerces, de l'Avenue de Roule, et à 5min à pied du Métro Ligne 1
Cet appartement très lumineux, et très calme se compose d'une entrée, d'une cuisine ouverte sur le séjour - salle à manger, d'une salle d'eau, d'un wc séparé, et d'un joli balcon d'angle de 6.1m².
Beaucoup de rangements
Une cave et un emplacement de parking complètent ce bien.
Informations et rdv Pierre Gaudinot 06.03.34.46.20
Vous ne serez que séduits par son très agréable balcon, exposition Plein Sud, donnant sur un beau jardin. A proximité des commerces, de l'Avenue de Roule, et à 5min à pied du Métro Ligne 1
Cet appartement très lumineux, et très calme se compose d'une entrée, d'une cuisine ouverte sur le séjour - salle à manger, d'une salle d'eau, d'un wc séparé, et d'un joli balcon d'angle de 6.1m².
Beaucoup de rangements
Une cave et un emplacement de parking complètent ce bien.
Informations et rdv Pierre Gaudinot 06.03.34.46.20
Prix net vendeur
800 000 €
Pourcentage des honoraires
3.75%
Nombre salles de bain/d'eau
1
Année de construction
1970
Niveaux
5/6
Copropriété
Oui
Chauffage
Collectif Mixte Sol/Convecteurs Electrique
Valeur DPE
295
Valeur GES
9
Taxe foncière
991€
Procédure en cours
Non
Charges courantes annuelles
3667